神奈川県内の貸倉庫・貸工場・賃貸土地の情報満載(トップ) > 神奈川のエリアで探す > 藤沢市 > 善行 > 藤沢市善行坂2-1-12 善行坂作業場
神奈川県藤沢市善行坂2-1-12 (善行) 善行坂作業場 詳細データ
この物件の物件番号は6007です。お電話(03-6260-658603-6260-6586)でお問合せの際は物件番号をお知らせ下さい。「神奈川倉庫ドットコムを見て」とお伝えいただくと話がスムーズに進みます。※不動産業者様へのご紹介は不可です。
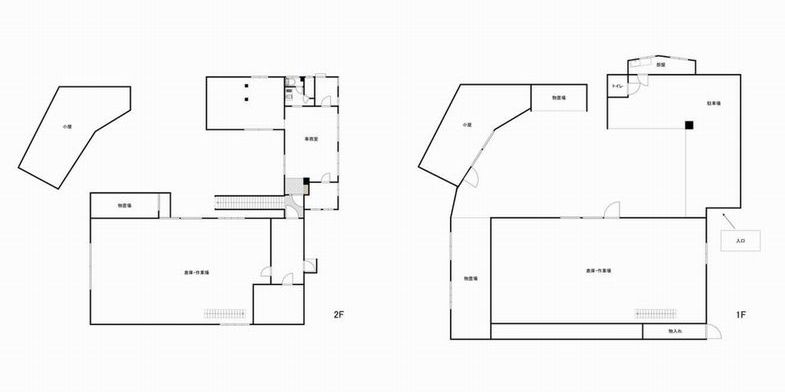
| 物件名 | 善行坂作業場 |
|---|---|
| 沿線/駅 | 小田急江ノ島線 / 善行 |
| バス/徒歩 | バス:- / 徒歩:18 分 |
| 所在地 | 神奈川県藤沢市善行坂2-1-12 |
| 賃料(坪・円) | 坪 3,607 円 (総額 660,000 円) |
| 共益費 | |
| 使用面積 | 183 坪 |
| 敷地面積 | 240.2 坪 |
| 礼金 | 2 ヶ月 |
| 敷金 | |
| 保証金 | 6ヶ月分 |
| 構造 | 鉄骨造 |
| 竣工年 | 1974 年 |
| 所在階 | 1-2/2 階 |
| 接道状況 | |
| 用途地域 | 工業地域 |
| 駐車場 | 有 |
| 契約期間 | 4 年 |
| 現況 | 使用中 |
| 備考 | 駐車スペース有 トイレ |
| 貸倉庫・貸工場・賃貸土地の事業用ポータルサイトNo.1 |
|---|
|
神奈川県藤沢市善行坂2-1-12の貸倉庫・貸工場・賃貸土地を探すなら中小企業を応援する神奈川貸倉庫.comでニーズに合った物件を検索してください。神奈川県藤沢市善行坂2-1-12の事務所付貸倉庫、クレーン付、店舗倉庫、工業専用地域等、何なりと営業担当者にお申し付けください。その他、神奈川県藤沢市善行坂2-1-12の貸し倉庫・貸し工場・賃貸土地を貸したい方には無料にて査定・掲載いたしますので当社のオーナーサポートシステムをご利用ください。神奈川県藤沢市善行坂2-1-12で貸倉庫・貸工場・賃貸土地を契約のテナント様には貸し倉庫・貸し工場の設計変更、造作のご相談も承ります。貸倉庫・貸工場・賃貸土地の移転・新規開設は神奈川エリア最大級、新着情報満載、神奈川貸倉庫.com! |










